Loading images...
Unit Reference: 3432
Interstellar Tower, Jumeirah Village Triangle, Dubai
1
Bedrooms
2
Bathrooms
645
Area SQ FT
1
Parking
Interstellar Tower, developed by Mr. Eight Development, is a new 29-story residential project in the serene and well-connected Jumeirah Village Triangle (JVT). This off-plan tower is designed with a modern architectural concept and focuses on providing an elevated living experience with a unique suite of amenities. The project is a mix of apartments with high-end finishes and smart-home features. The expected handover date is Q1 2027.
✨ Layout: While the project primarily features 2- and 3-bedroom units, some sources indicate the availability of 1-bedroom apartments, though they are not as widely featured. These units are designed for optimal space utilization and modern living.
Interstellar Tower is strategically located in Jumeirah Village Triangle (JVT), a family-friendly community known for its parks and green spaces.
Interstellar Tower is designed to offer a unique, resort-style living experience with a host of premium amenities.
Investing in a 1-bedroom apartment at Interstellar Tower offers a promising opportunity with an attractive price point.
The purchase of a 1-bedroom apartment at Interstellar Tower can be a pathway to securing a residency visa.
Our team specializes in providing a transparent and personalized experience for our clients looking to invest in Dubai's real estate.
| Unit Reference | : 3432 |
| Permit Number | : N/A |
| Purpose | : Buy |
| Status | : Offplan |
| Emirate | : Dubai |
| Property Name | : Interstellar Tower |
| Added On | : 2025-09-24 |

Verified by DLD

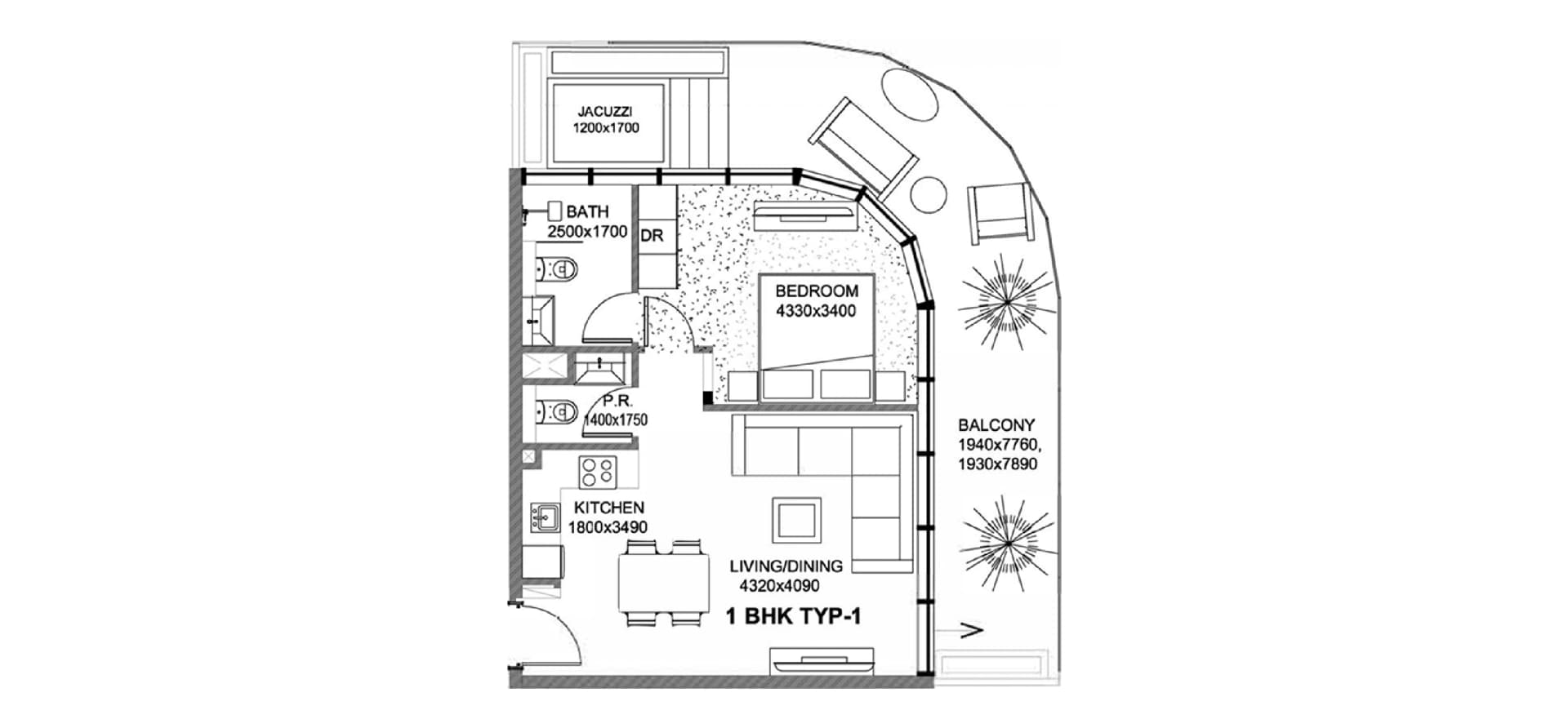
The floor plan of a 1-bedroom apartment at Interstellar Tower is designed to provide a comfortable and separate living and sleeping space. The layout typically features an open-concept living area that flows into the dining space and a well-equipped kitchen.
On Booking Date

Easy Installment Plan

100% Completion | Q3 2028

Discover luxury and comfort
Calculate and view the monthly mortgage
6,916.85 AED

Find a Broker
Find trusted agents awarded for their excellent performance